Neue Modelle

Loretto Modell

Auftauchen:
40m² | 48m² | 57,2m²
Abmessungen:
3,7x10,8[m] | 4x12[m] | 4,4x13[m]

Neue Modelle

Loretto Modell

Auftauchen: 40m² | 48m² | 57,2m²
Abmessungen: 3,7x10,8[m] | 4x12[m] | 4,4x13[m]

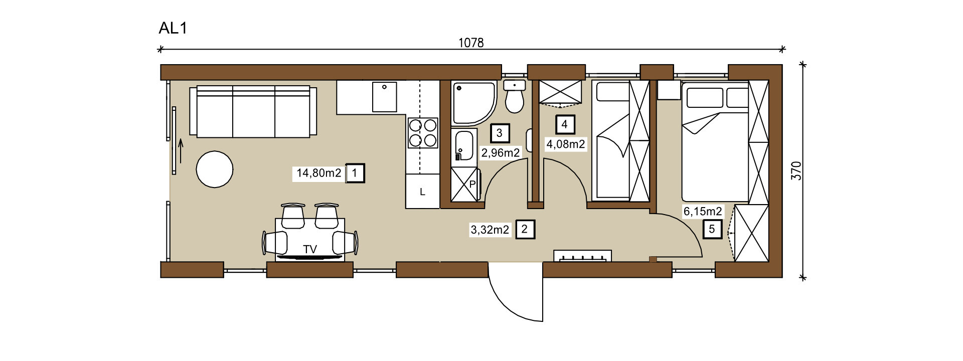
Grundriss A 40 m2


Variante AL1

Variante AL2

Variante AL3

Grundriss B 48 m2


Variante BL1

Variante BL2

Variante BL3

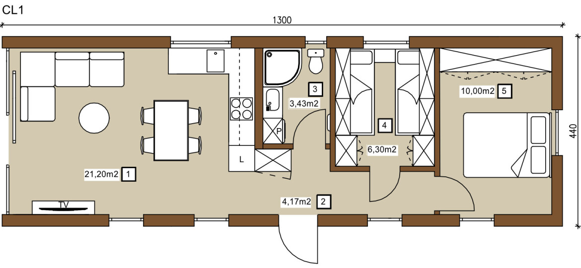
Grundriss C 57,2 m2


Variante CL1

Variante CL2

Variante CL3

Konstruktion

  • Hausrahmen aus korrosionsgeschützten Stahlprofilen
  • zusätzlicher Schutz des Bodens mit einem flachen Blech
  • Tragende Konstruktion aus zertifiziertem C24-Holz, Strukturelemente mit einem Querschnitt von 4,5 x 15 [cm]
  • Innenverkleidung aus OSB-3-Platten und wasserfestem Sperrholz.

Isolierung

  • dampfsperrende Folie (Dampfbremse)
  • Windisolierung
  • Dämmung von Wänden, Boden und Decke - 15 [cm]
  • PVC-Fenster (Drehkippfenster, Schiebefenster im Wohnzimmer)

Äußere Fertigstellung

  • Fassade aus Resysta-Verbundplatten und Stehfalzmetallplatten
  • Dachdeckung mit Stehfalzmetallplatten
  • Dachrinnen
  • Außenbeleuchtung: LED-Leisten und Wandleuchten

Innenausbau

  • Bodenbelag: Vinyl-Bodenplatten
  • Sockelleisten MDF
  • Wände - MDF-Wandpaneele, Platten Krono Wall Design, im Badezimmer wasserfeste Wandpaneele
  • Sufity - podbitka drewniana, lakierowana
  • Decken - Holzdecke, lackiert

Installationen

  • Fußbodenheizung - elektrische Heizmatten, unabhängige Temperaturregelung in jedem Zimmer, WiFi-Modul (Möglichkeit der Fernsteuerung der Temperatur im Haus). Zusätzlicher elektrischer Heizkörper im Badezimmer.
  • Fassungsvermögen für die Warmwasserbereitung mit WiFi-Modul
  • Elektroinstallation 230 V, Verteilerkasten
  • Sanitäranlagen
  • Schwerkraftlüftung, mechanische Lüftung im Bad
  • Zusätzliche Installation von Klimaanlagen möglich
  • Waschmaschinenanschluss
  • Kontakte, Schalter
  • Beleuchtung des gesamten Hauses

Ausstattung

  • Voll ausgestattete Küchenzeile - Kühlschrank, Geschirrspüler, Backofen, Induktionskochfeld, Dunstabzugshaube
  • Ausstattung des Badezimmers - WC, Dusche, Waschbecken, LED-Spiegel, Boiler, elektrischer Heizkörper

Komplette Fassade und Innenausbau

Die Fassade der Modelle der Premium-Serie besteht aus langlebigen Resysta-Verbundplatten und Stehfalzmetallplatten. Für die Innenausstattung werden ausschließlich hochwertige Materialien wie Vinylplatten, MDF-Platten und Naturholz verwendet.

Fußbodenheizung - Heizmatten

Im gesamten Haus wird eine Fußbodenheizung in Form von elektrischen Heizmatten verwendet. Jedes Zimmer verfügt über eine unabhängige Temperaturregelung über einen modernen Touchscreen.

Kücheneinrichtung mit Elektrogeräten

Jedes Haus ist standardmäßig mit einer voll ausgestatteten Küche mit allen Geräten wie Kühlschrank, Geschirrspüler, Herd, Backofen und Dunstabzugshaube ausgestattet.

Vollständig ausgestattetes Badezimmer

Jedes Haus verfügt über ein komplettes Badezimmer, das mit allen notwendigen Geräten ausgestattet ist. Lediglich der Anschluss von Versorgungsleitungen ist erforderlich, um das Haus voll nutzbar zu machen.

Externe Beleuchtung

Vor dem Haus installierte LED-Leisten und Fassadenleuchten schaffen eine einzigartige Atmosphäre und machen unsere Häuser zu einem traumhaften Ort, an dem man seine Freizeit verbringen kann.

Fordern Sie ein Angebot an

Lacroma House